本套为现代简约风格装修,客厅地面采用的大理石装修,局部采用的是地毯进行装饰,墙面采用乳胶漆进行装修,吊顶采用石膏板进行平顶吊顶,加以吸顶灯做装饰,白色的沙发,柔软而舒适,电视背景墙采用的是饰面板进行装修,纹理清爽、颜色自然,可以达到实木的外观效果,造价却远远低于实木,在日常家居中运用较为广泛。木质饰面板比较轻便,装饰效果好,是理想的背景墙材料,可使用钉装方法安装。空间质朴与光亮,把空间最大化,同时利用了暖色的灯光给整个空间增添了温暖感,从而达到了业主对生活的朴素和对“家”的热爱。
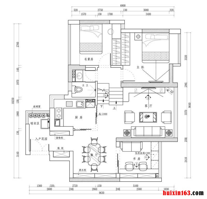
![]() 春苑小区现代简约风格装修效果图-一层结构图
|
小区效果图说明
春苑小区位于云南省昆明北邻人民西路,南靠运粮河,东至近华圃路,小区总建筑面积19.22万平方米,属于成熟社区,交通便利,周围学校、医院等设施配套齐全。
本套为现代简约风格装修,客厅地面采用的大理石装修,局部采用的是地毯进行装饰,墙面采用乳胶漆进行装修,吊顶采用石膏板进行平顶吊顶,加以吸顶灯做装饰,白色的沙发,柔软而舒适,电视背景墙采用的是饰面板进行装修,纹理清爽、颜色自然,可以达到实木的外观效果,造价却远远低于实木,在日常家居中运用较为广泛。木质饰面板比较轻便,装饰效果好,是理想的背景墙材料,可使用钉装方法安装。空间质朴与光亮,把空间最大化,同时利用了暖色的灯光给整个空间增添了温暖感,从而达到了业主对生活的朴素和对“家”的热爱。 更多»推荐小区效果图
共0条 [查看全部] 相关评论
|